AUTOCAD (DISEÑO ASISTIDO POR COMPUTADORA)
A simple vista Autocad parece ser un programa serio y difícil pero no es así, es ameno y fácil de aprender. Es una herramienta con la que podrás materializar un diseño que antes solo lo tenías en tu mente.
![]()
WEBINAR GRATUITO 21 DE AGOSTO 14HS (INSCRIPCIÓN CLICK AQUÍ)

AUTOCAD (DISEÑO ASISTIDO POR COMPUTADORA)
CURSO ONLINE PRESENCIAL
CONTENIDOS:
A simple vista Autocad parece ser un programa serio y difícil pero no es así, es ameno y fácil de aprender. Es una herramienta con la que podrás materializar un diseño que antes solo lo tenías en tu mente.
También Autocad te ayudará a desarrollar un estilo personal con el cual podrás realizar dibujos para comunicar tus diseños.
En este curso aprenderás desde las herramientas básicas, las mas complejas hasta la impresión de tus planos en PDF y en papel.
Vas a aprender a dibujar en forma ordenada con capas, cotas y rellenos, también aprenderás la diferencia entre el espacio modelo y espacio presentación o layaut y como trabajar en cada uno de ellos, insertar imágenes, acotar, sombrear, y llegar a hacer una perspectiva axonométrica.
Para tomar este curso solo necesitas tener conocimientos de espacio, interés por el dibujo y el diseño.
Comienza ya a utilizar un programa que te permitirá dibujar y detallar con precisión cualquier idea que imagines.
Como proyecto final dibujaras una planta de una vivienda definida por el docente con sus vistas y cortes.
Aprenderás las interfaces de Autocad y todas las herramientas para ser un excelente dibujante y podrás salir al mercado laboral sin temor a enfrentarte con este desafío.
DIRIGIDO A:
Este curso está dirigido a toda persona que quiera obtener conocimientos de dibujo asistido por computadora para realizar planos de sus proyectos.
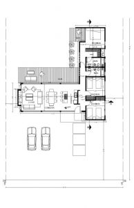
EJEMPLO DE TRABAJO:
Este será el ejemplo a dibujar y entender

REQUERIMIENTOS TÉCNICOS:
- Computadora
- Conexión a internet
- Autocad instalado (2010 a 2019)
DURACIÓN DEL CURSO:
- 6 (seis) clases de 80 minutos cada una
- 1 (un) día por semana
- “La diferencia entre un sueño y un proyecto es la fecha”
No pierdas tiempo.
PROGRAMA
1º CLASE
Presentación del curso
Entorno de pantalla
Interfaz del usuario
Entrada y comandos de visualización
Dibujo con precisión
Creación de capas
Crear un dibujo prototipo
Practica 1
2ºCLASE
Entidades del dibujo
Referencia a objetos
Modificación de entidades
Creación y edición de textos
Práctica 2
3º CLASE
Bloques creación e inserción
Bajar bloques de la red
Acotación
Sombreados
Práctica 3
4ºCLASE
Dibujo de planta arquitectónica
Aplicación de conceptos adquiridos
Dibujo de carpintería y muebles
Diagramación de láminas
Símbolos universales de dibujo
Plantas cortes y vistas
5ºCLASE
Impresión en papel y en pdf
Espacio modelo
Espacio presentación
Configuración de hoja
Rótulos y recuadro
Inserción de imágenes JPG/PNG
6ºCLASE
Dibujo de axonométrica
Ejes x, y, z
Despiece de modelo
Consultas finales

![]()

SOLICITA FECHA DE INICIO. CLICK AQUÍ.
PÚBLICO EN GENERAL.
$ 3000 POR CURSO. o:
$1700 PAGAR CUOTA UNO DE DOS POR CURSO Total $ 3400
ALUMNOS PALLADIO arancel con descuento.
$ 2700 POR CURSO PAGAR EN UN PAGO
$ 1500 CUOTA UNO DE DOS POR CURSO total $ 3000
INCRIBITE EN EL CURSO (Click Aquí)
INSCRIBITE EN EL WEBINAR GRATUITO. (CLICK AQUÍ)
MODALIDAD:
ONLINE Presencial (tenes que conectarte en el horario de cursada) Incluye certificado digital con el 70% de asistencia.
DURACIÓN
6 (seis) clases de 80 minutos cada una
1 (un) día por semana
**No se dictan clases en feriados o durante receso invernal.
***CUPO MÍNIMO PARA INICIAR 6 PERSONAS. Si no se completa el cupo se reprograma la fecha.
REQUERIMIENTOS TÉCNICOS:
- Una vez que te inscribís te mandamos el link de la sala de clases virtual.
- Conexión a internet. Recordá que necesitas una buena conexión, recomendable 4G.
- Sería importante que tu dispositivo (cel, tablet o computadora) tenga cámara y microfono.
***IMPORTANTE no se recuperan las clases por problemas de conexión o inconvenientes técnicos del alumno. En caso de tener un inconveniente el docente, la clase será recuperada, día y horario a acordar.
DOCENTE

DOCENTE:
Soy Daniel La Rosa arquitecto recibido en la Universidad de Buenos Aires Facultad de Arquitectura y Urbanismo.
Docente en la rama de informática en cursos presenciales 1°, 2° y 3° año y a distancia desde 2005 en el Instituto Superior de Diseño Andrea Palladio.
Trabajo como arquitecto en mi propio estudio “obrasenlínea” realizando proyectos, presentaciones y dirección de obras desarrollando esta pasión que es el diseño y sus resultados.
.
Teléfonos de contacto
0223 4932108 / 0223 4951482
Whatsapp +54 9 223 563 9194
Lamadrid 2762
Mar del Plata